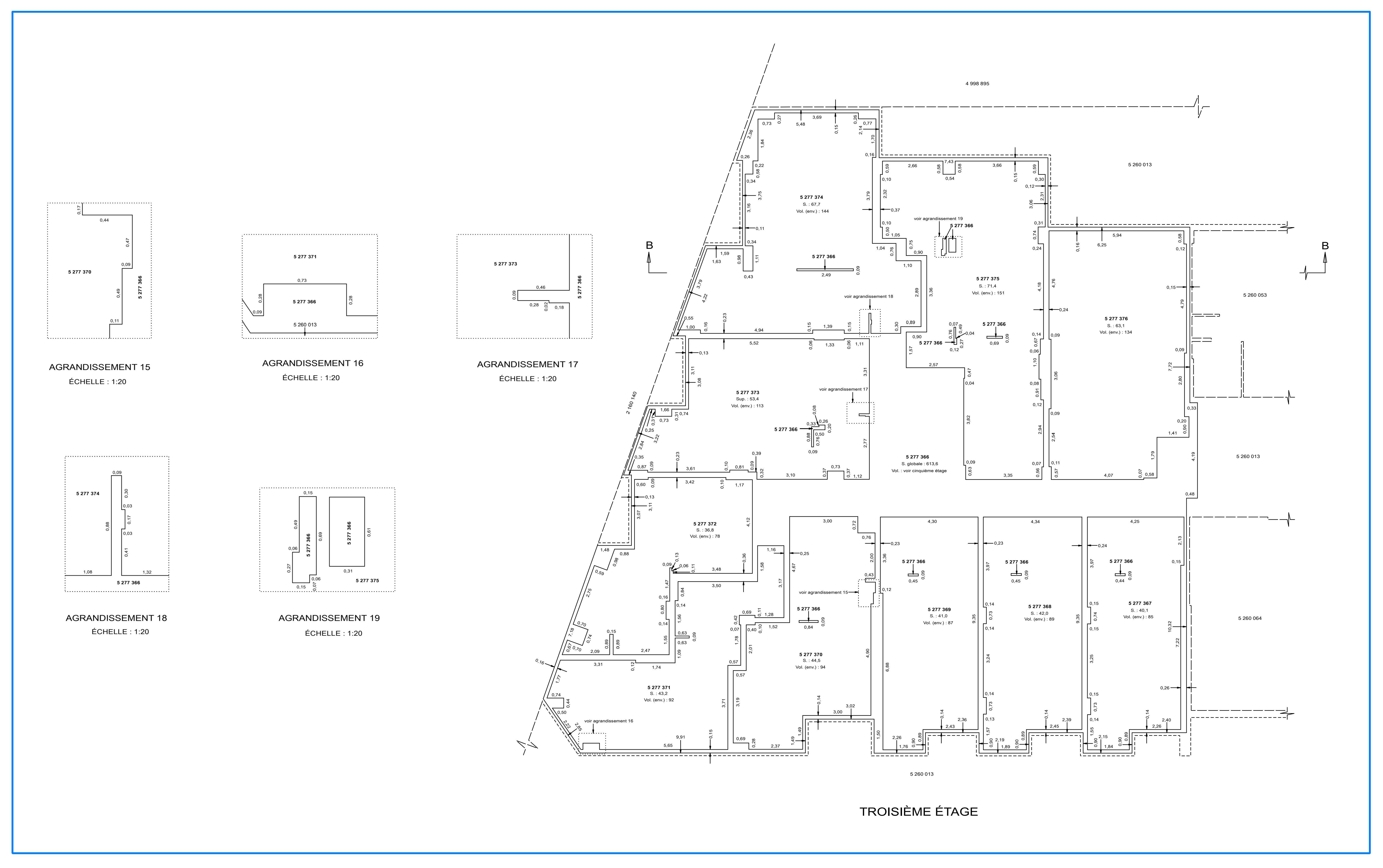
Lots transitoires, étape 2 (suite de l'exemple 11)
Extrait
Résumé
- Lot transitoire d’étage (avec lots intérieurs)
- Agrandissements
- Partie inférieure du lot
- Superficie excluant l’ouverture au plancher
- Volume total et note de référence au volume
- Coupes types par groupe de lots
- Coupe spécifique
- Plan parcellaire non requis
Consultation des fichiers
- Natifs :
- Administratifs :
- Officiels :







