Accueil
Plan du site
Nous joindre
Québec.ca
English
Secteurs
Information foncière
Vous êtes
Clientèles du Registre foncier
Arpenteurs-géomètres
Organismes municipaux et gouvernementaux
Rechercher
Arpenteurs-géomètres
Information foncière
Arpenteurs-géomètres
Vous êtes à la page:
Correction par nouveau plan
Ouvrir le menu.
Correction par nouveau plan
Extrait
Résumé
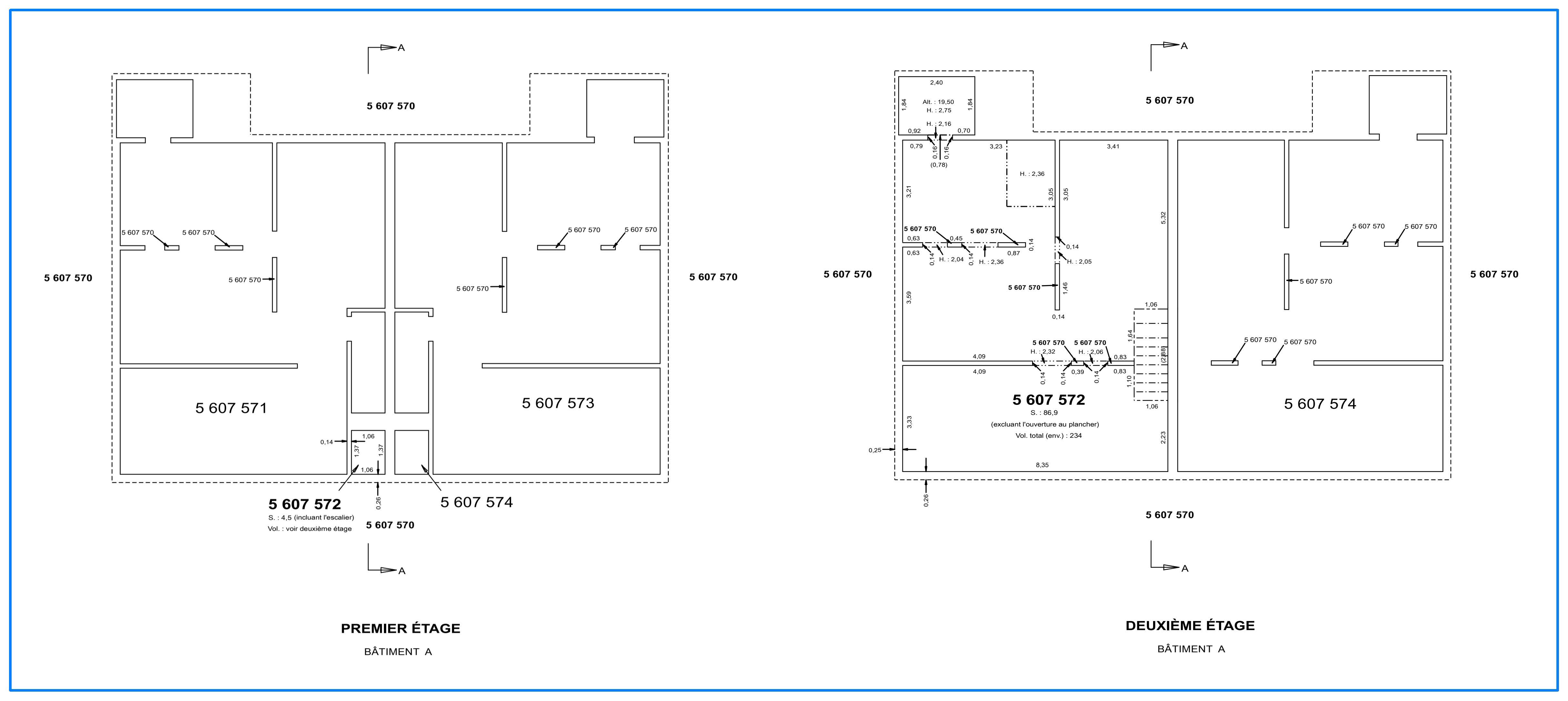
Limites et mesures corrigées sur une vue d’étage
Note de référence à la coupe sur le cartouche
Nouveau feuillet pour le PC
Rapport (RCO) requis
Plan parcellaire non requis
Message d'avertissement sur le plan complémentaire
Afficher la description.
Avant-Après
Afficher la description.
Consultation des fichiers
Natifs :
Bordereau et document joint
Plan complémentaire
Administratifs :
Approbation du propriétaire (ASP)
Rapport de modification cadastrale (RCO)
Officiels :
Document joint
Plan complémentaire
Fermer le menu.
Arpenteurs-géomètres
Exemples de cadastre vertical
Capsules info
Ce lien s'ouvrira dans une nouvelle fenêtre
Ce lien s'ouvrira dans une nouvelle fenêtre
Toutes les capsules
Évaluer l'information de la page ou signaler un problème
L'information sur cette page vous a-t-elle été utile?
Oui
Non
Avez-vous éprouvé un problème au cours de votre navigation? Faites-nous part de vos observations et aidez-nous à améliorer nos outils Web.
Évitez d'entrer des renseignements personnels dans ce champ. Notez que vous ne recevrez aucune réponse.
Maximum 500 caractères
Votre message a été envoyé. Merci de nous aider à améliorer nos services. Vos commentaires sont importants pour nous.