Accueil
Plan du site
Nous joindre
Québec.ca
English
Secteurs
Information foncière
Vous êtes
Clientèles du Registre foncier
Arpenteurs-géomètres
Organismes municipaux et gouvernementaux
Rechercher
Arpenteurs-géomètres
Information foncière
Arpenteurs-géomètres
Vous êtes à la page:
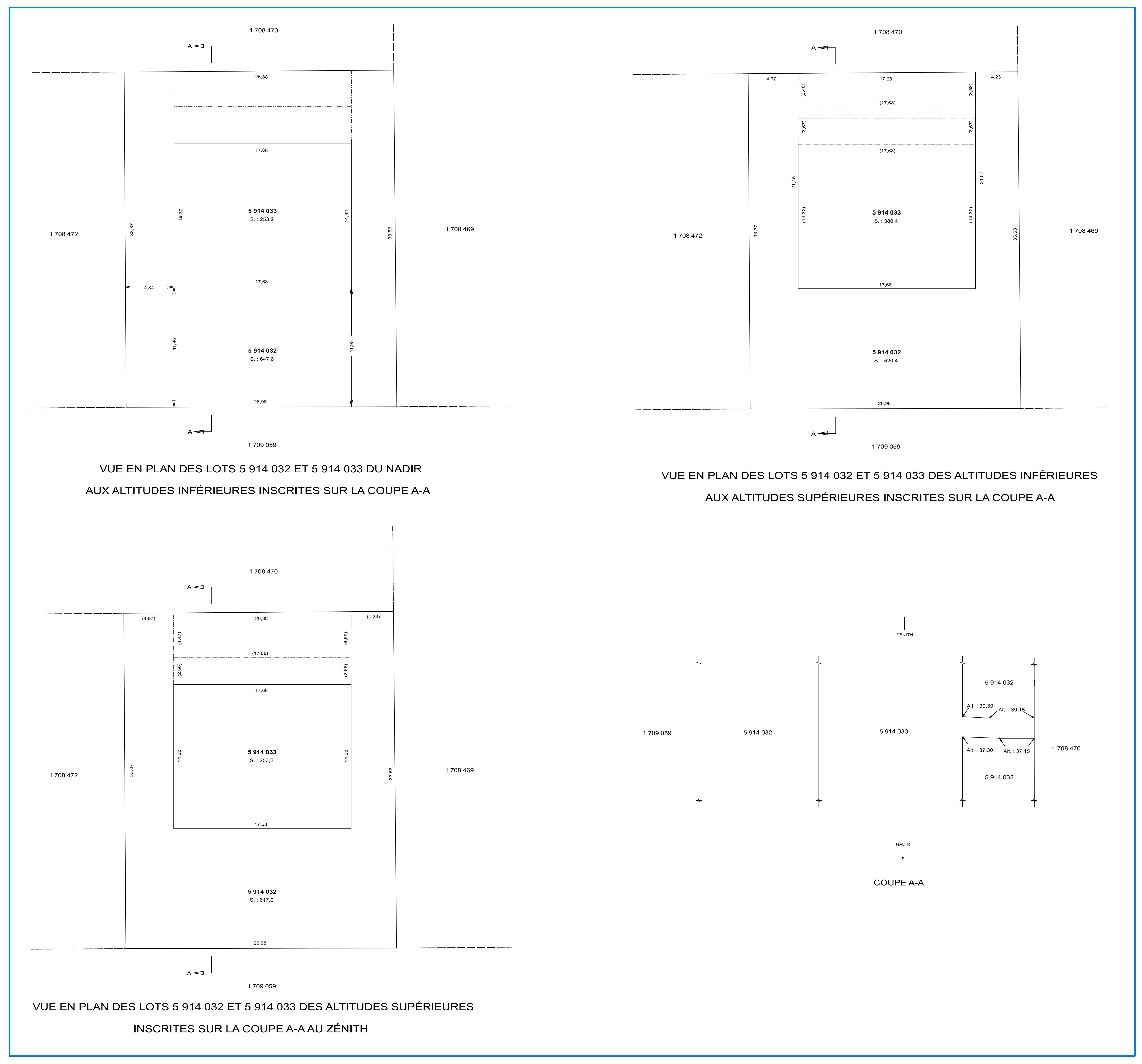
Altitudes inférieures et supérieures
Ouvrir le menu.
Altitudes inférieures et supérieures
Extrait
Résumé
Vues en plan en fonction de la coupe spécifique
Altitudes inférieures et supérieures
Coupe spécifique
Certificat (CAG) requis
Consultation des fichiers
Natifs :
Bordereau et document joint
Plan parcellaire et plan complémentaire
Administratifs :
Approbation du propriétaire (ASP)
Certificat de l'arpenteur-géomètre (CAG)
Officiels :
Document joint
Plan parcellaire
Plan complémentaire
Fermer le menu.
Arpenteurs-géomètres
Exemples de cadastre vertical
Évaluer l'information de la page ou signaler un problème
L'information sur cette page vous a-t-elle été utile?
Oui
Non
Avez-vous éprouvé un problème au cours de votre navigation? Faites-nous part de vos observations et aidez-nous à améliorer nos outils Web.
Évitez d'entrer des renseignements personnels dans ce champ. Notez que vous ne recevrez aucune réponse.
Maximum 500 caractères
Votre message a été envoyé. Merci de nous aider à améliorer nos services. Vos commentaires sont importants pour nous.