Deux bâtiments - deux lots communs
Extrait
Résumé
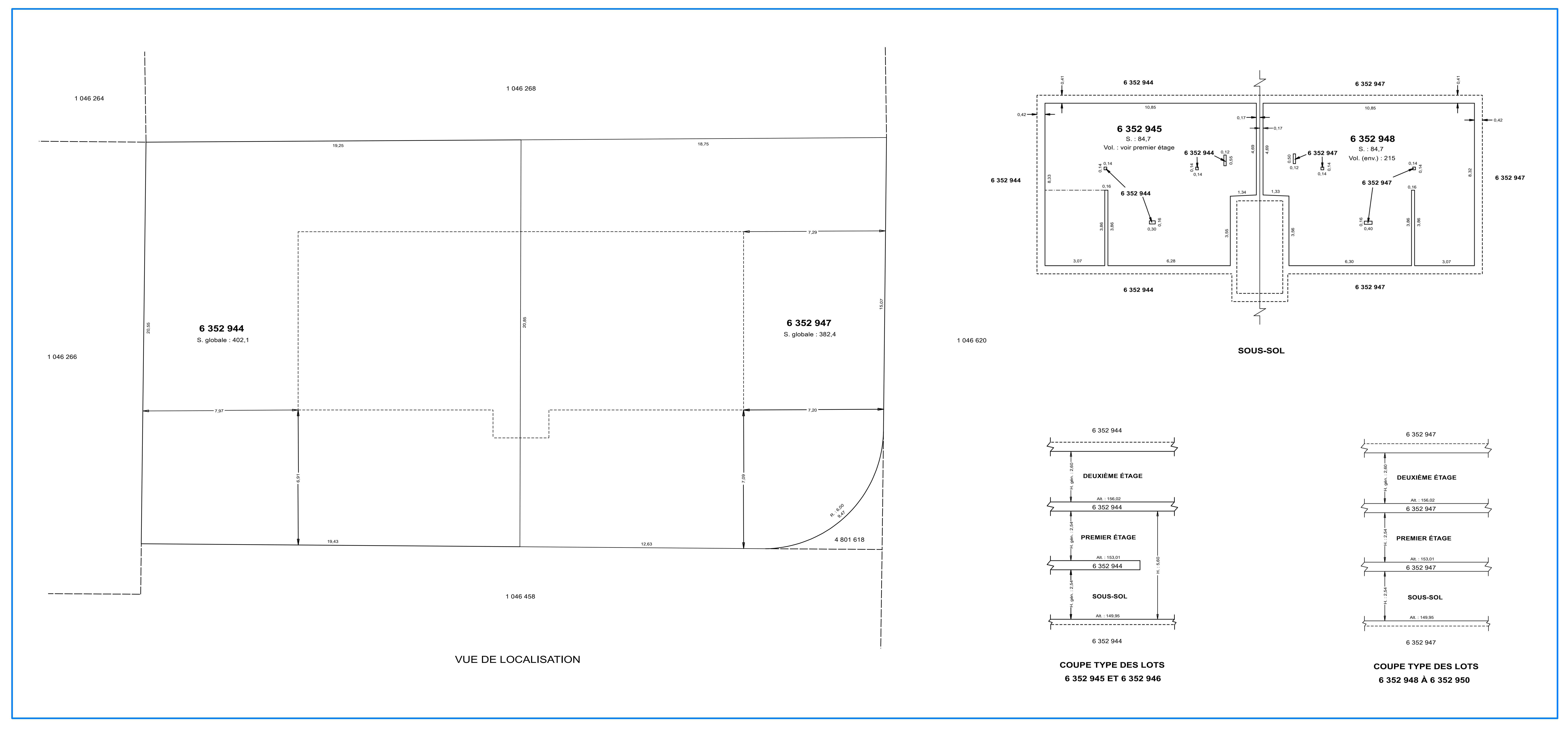
- Vue de localisation (copropriété de type jumelée)
- Différences de hauteurs inscrites sur une vue d’étage
- Coupes types par groupe de lots
- Coupe type avec l’ouverture au plafond et au plancher
Consultation des fichiers
- Natifs :
- Administratifs :
- Officiels :







